4210 Westgate LaneFulshear, TX 77441
Due to the health concerns created by Coronavirus we are offering personal 1-1 online video walkthough tours where possible.




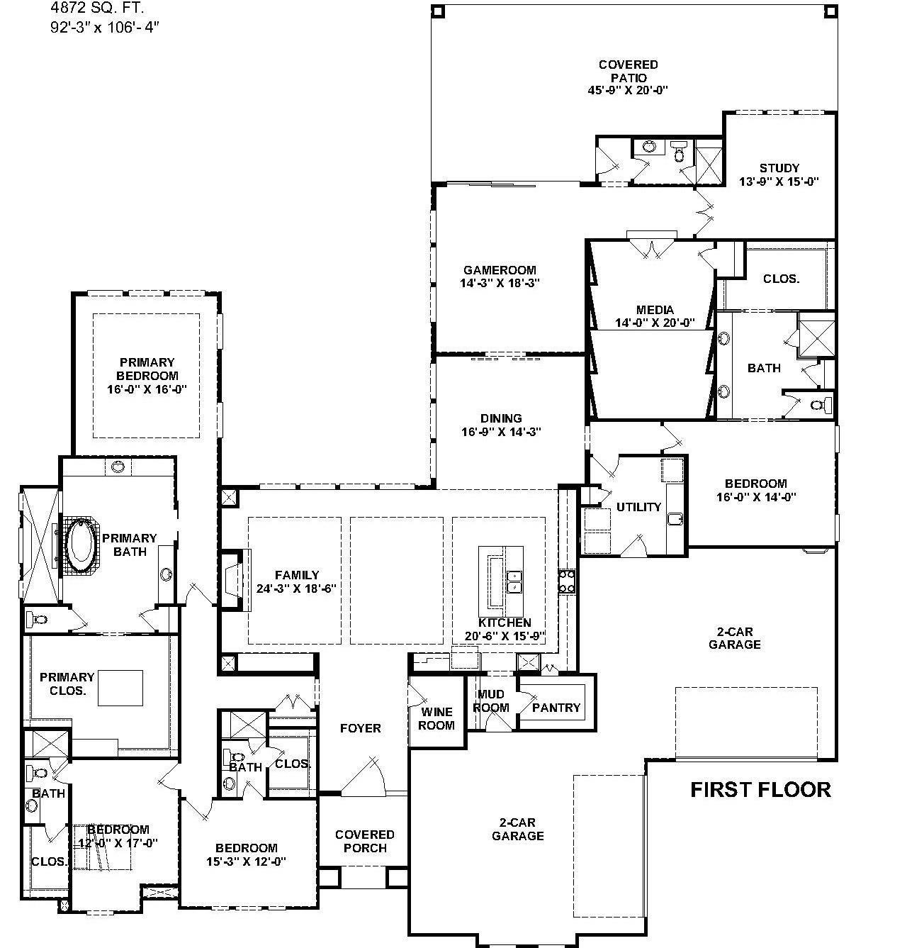
New Custom Move-In Ready Home by Partners in Building. Stunning 1-story custom home with 4,872 sq ft, 5 bedrooms, 4.5 baths, and 4-car garage. This open-concept layout features a spacious family room, a chef-inspired kitchen with island and walk-in pantry, and a formal dining room. The private primary suite includes dual closets and a spa-style bath. Additional highlights: a wine room, media room, game room, study, and mudroom. Large secondary bedrooms offer generous closets and access to full baths. Enjoy outdoor living under the expansive 45’ covered patio. Built for entertaining and everyday comfort with smart design throughout. Located in the Parks at Weston Lakes, which offers the small town, country club lifestyle that defines Weston Lakes homesites and full access to the private golf course, club and restaurant, and the amenities center with tennis courts, sports courts, gym and pool.
| a month ago | Listing updated with changes from the MLS® | |
| a month ago | Status changed to Pending | |
| 3 months ago | Listing first seen on site |
IDX information is provided exclusively for consumers’ personal, non-commercial use. It may not be used for any purpose other than to identify prospective properties consumers may be interested in purchasing. This data is deemed reliable but is not guaranteed accurate by the MLS.
Data provided by HAR.com © 2026. All information provided should be independently verified.

Did you know? You can invite friends and family to your search. They can join your search, rate and discuss listings with you.