31602 Rosemary RoadFulshear, TX 77423
Due to the health concerns created by Coronavirus we are offering personal 1-1 online video walkthough tours where possible.




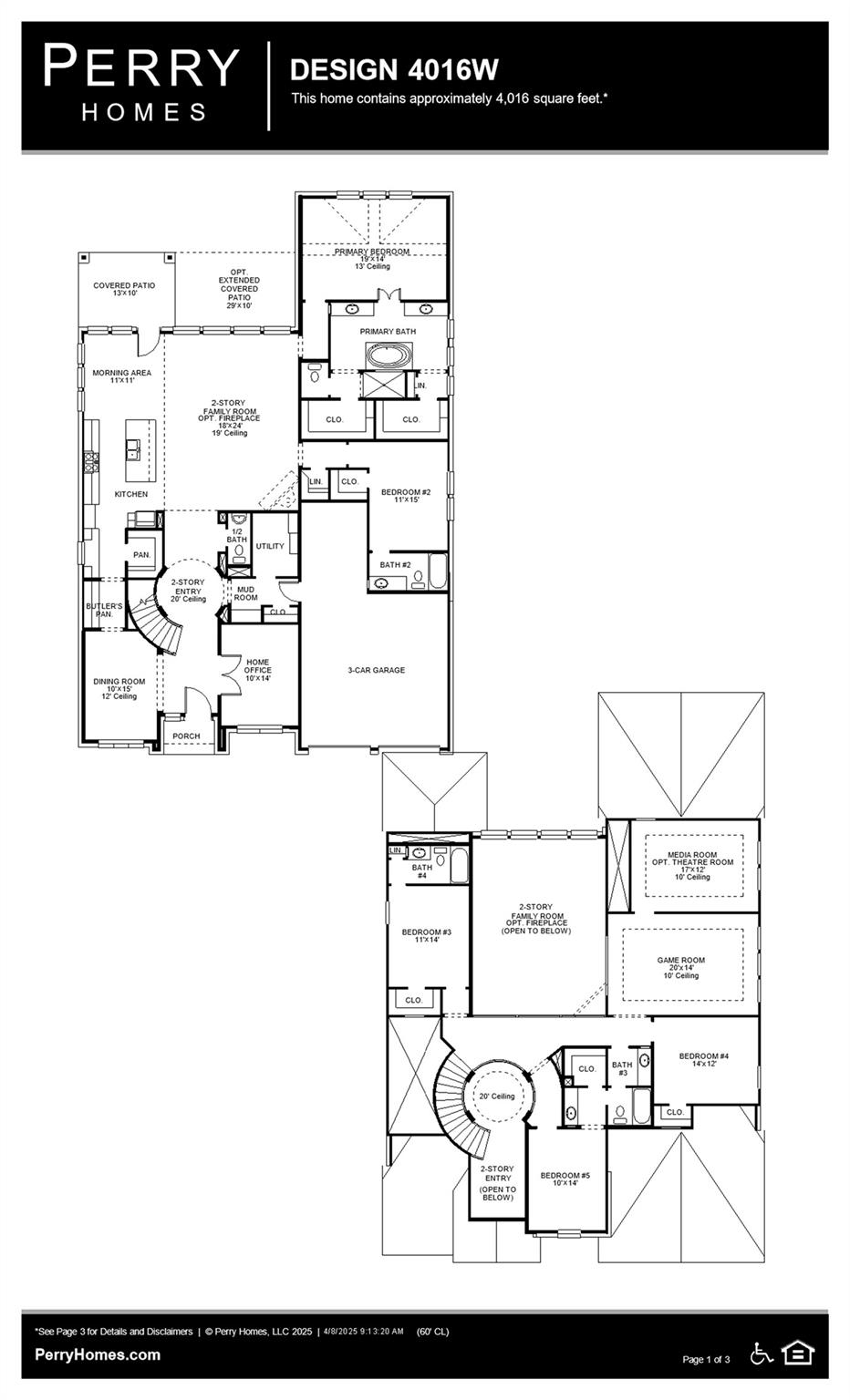
Corner homesite. Home featured on a corner homesite. Elegant two-story design featuring a 20-foot rotunda ceiling. Hardwood floors throughout living areas. Home office with French doors and formal dining room set at entry. Spacious family room with a 19-foot ceiling, wood mantel fireplace and a wall of windows. Kitchen features a large island with built-in seating space, double wall oven, 5-burner gas cooktop, walk-in pantry and a Butler's pantry. Private primary suite boasts a curved wall of windows. Primary bath includes a freestanding tub, separate glass-enclosed shower, dual vanities and two large walk-in closets. Downstairs guest suite with a full bath and walk-in closet. Upstairs game room with an adjoining theatre room. Secondary bedrooms, a linen closet and a Hollywood bath complete the second floor. Extended covered backyard patio. Mud room just off the three-car garage.
a week ago | Listing updated with changes from the MLS® | |
3 weeks ago | Price changed to $849,900 | |
2 months ago | Status changed to Active | |
2 months ago | Listing first seen on site |
IDX information is provided exclusively for consumers’ personal, non-commercial use. It may not be used for any purpose other than to identify prospective properties consumers may be interested in purchasing. This data is deemed reliable but is not guaranteed accurate by the MLS.
Data provided by HAR.com © 2025. All information provided should be independently verified.
Did you know? You can invite friends and family to your search. They can join your search, rate and discuss listings with you.