4 West LaneHouston, TX 77019
Due to the health concerns created by Coronavirus we are offering personal 1-1 online video walkthough tours where possible.




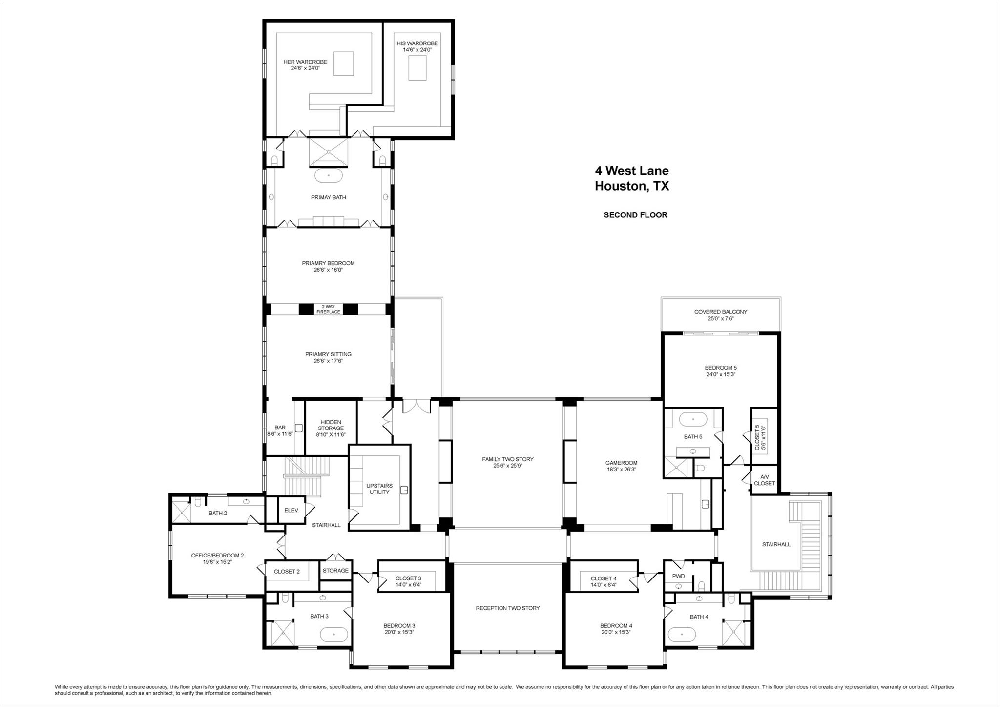
Impressive new construction by Layne Kelly Homes on 1.25 acres, located in the Tall Timbers Section of River Oaks. Home is now underway with completion scheduled for summer 2026. Design by JD Bartell. Stone and stucco exterior with a standing seam metal roof. Formal entry and grand living areas including study and wet bar. Catering kitchen, wine room and butler’s pantry to dining room. Island kitchen, with L’Atelier Range and Gaggenau appliances, overlooks family room with views to covered porch, pool and yard. Tennis court will be constructed along with a well-appointed guest house. Two stairways up to second level bedrooms. Very nice primary suite with sitting room, beautiful bath and spacious closets. Four additional bedrooms and baths on second level. Third floor gameroom, home theatre and full bath. Porte-cochere at side entry leads back to four car garage. Lutron lighting, Generator, Elevator. A fine home on beautiful grounds.
| 6 days ago | Listing updated with changes from the MLS® | |
| 7 days ago | Listing first seen on site |
IDX information is provided exclusively for consumers’ personal, non-commercial use. It may not be used for any purpose other than to identify prospective properties consumers may be interested in purchasing. This data is deemed reliable but is not guaranteed accurate by the MLS.
Data provided by HAR.com © 2026. All information provided should be independently verified.

Did you know? You can invite friends and family to your search. They can join your search, rate and discuss listings with you.